全国服务热线
点击次数:1089 更新时间:2022-07-18

产品概述
有源滤波器是采用三电平拓扑结构,应用先进控制算法,具有功率密度高、效率高、成本低、噪音低等显著优势,一机多用,谐波治理为主,无功补偿功能和三相不平衡补偿功能可选。单个模块可独立运行,可靠性强;扩容方便,并联、插拔式模块化的设计支持不同容量扩容,可在线扩容与维护;多台补偿时,一台设备故障,不影响其他模块的正常运行,可靠性高。
型号说明

特性和优点
装置效率高 | 满载热损耗≤3% |
响应时间短 | 瞬时响应≤0.1ms,完全响应≤0.5ms |
补偿效果佳 | 单次谐波治理效率≥90%,治理后网侧THDi≤5% |
扩容方便 | 功率单元模块化设计,多台抽屉式APF功率模块扩容;可在线扩容与维护;单模块独立工作,故障时不影响其他模块独立运行,可靠性高 |
智能管理 | 选配远程无线通信功能,RS485/232等多通信端口可选,便于接入管理系统 |
滤波器原理

技术参数
订货设计型号 | ||||
容量 | 30A | 50A | 75A | 100A |
更大容量可通过并联拓展并由统一控制装置进行协调控制 | ||||
额定电压 | 220V/400V/690V | |||
相/线数 | 三相三线或三相四线 | |||
频率 | 50Hz/60Hz | |||
滤波范围 | 2-60次 | |||
滤波能力 | ≤5%THDi | |||
涌入电流 | 少于额定电流值 | |||
限流运转 | 限制在额定电流补偿 | |||
瞬时响应时间 | ≤0.1ms | |||
全响应时间 | ≤5ms | |||
噪音(距离1米) | 60dB | |||
触摸屏 | 5英寸(8英寸可选) | |||
显示内容 | 电量参数/专家参数/主接线图/事件记录/波形曲线等 | |||
显示语言 | 中文/英文等 | |||
操作方式 | 面板触摸/手自动开关 | |||
硬件接口 | RS485/Ethernet | |||
通信协议 | Modbus、CDT | |||
防护等级 | IP20 | |||
工作条件 | -40℃~70℃;最大95%,无凝霜;海拔1500米以下;高海拔地区可以选择降额运行; | |||
执行标准 | EN61000-3-4,IEEE519-1992,EN50178,EN50081,EN61000-4-6 | |||
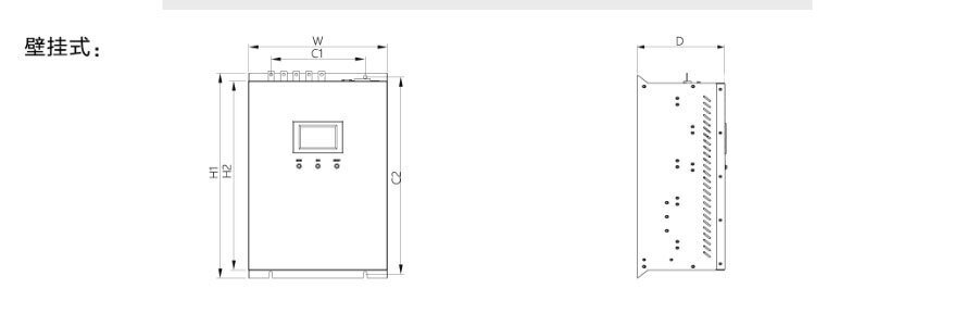
尺寸规格

规格 | 外型尺寸(mm) | 安装孔中心距(mm) | ||||
高度(H1) | 高度(H2) | 宽度(W) | 深度(D) | 宽度(C1) | 高度(C2) | |
30A | 450 | 500 | 280 | 240 | 200 | 480 |
50A | 600 | 650 | 440 | 240 | 300 | 625 |
75A | 600 | 650 | 440 | 240 | 300 | 625 |
100A | 750 | 700 | 490 | 300 | 300 | 725 |

规格 | 外型尺寸(mm) | 安装孔中心距(mm) | ||||||
高度(H1) | 宽度(W1) | 宽度(W2) | 深度(D2) | 深度(D3) | 高度(C1) | 宽度(C2) | ||
30A | 240 | 280 | 488 | 450 | 30 | 480 | 150 | 465 |
50A | 240 | 440 | 488 | 600 | 30 | 630 | 150 | 465 |
75A | 240 | 440 | 488 | 600 | 30 | 630 | 150 | 465 |
100A | 300 | 490 | 550 | 700 | 30 | 725 | 200 | 525 |
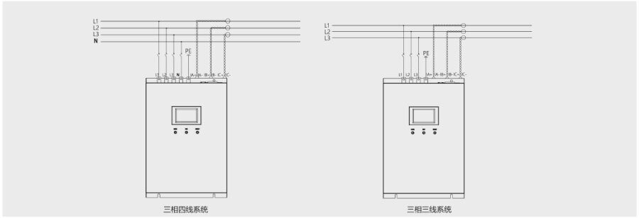
接线方式

安装方式

典型应用案例


有源电力滤波器方案设计
有源电力滤波器根据负载和配电系统实际倩况以及需要达到的补偿效果的不同,进行灵活选择不同的补偿形式。从而达到滤波效果和投资的最优化设计。根据有源电力滤波器安装位置的不同,可以提供集中滤波补偿和局部(就地)补偿。
有源电力滤波器上图方法
有源电力滤波器根据负载和配电系统实际情况,进行灵活选择有源滤波器的位置。以下是两种经典上图方法。
